Auburn Estates is one of the only new subdivisions in the Fox Valley that offers large, 1+ acre lots with municipal sewer and water available (no need for expensive well and septic systems)! Located only minutes from Appleton, the community offers the extra space that comes with living in the country with the conveniences of being in town.

* Denotes potential exposure is possible
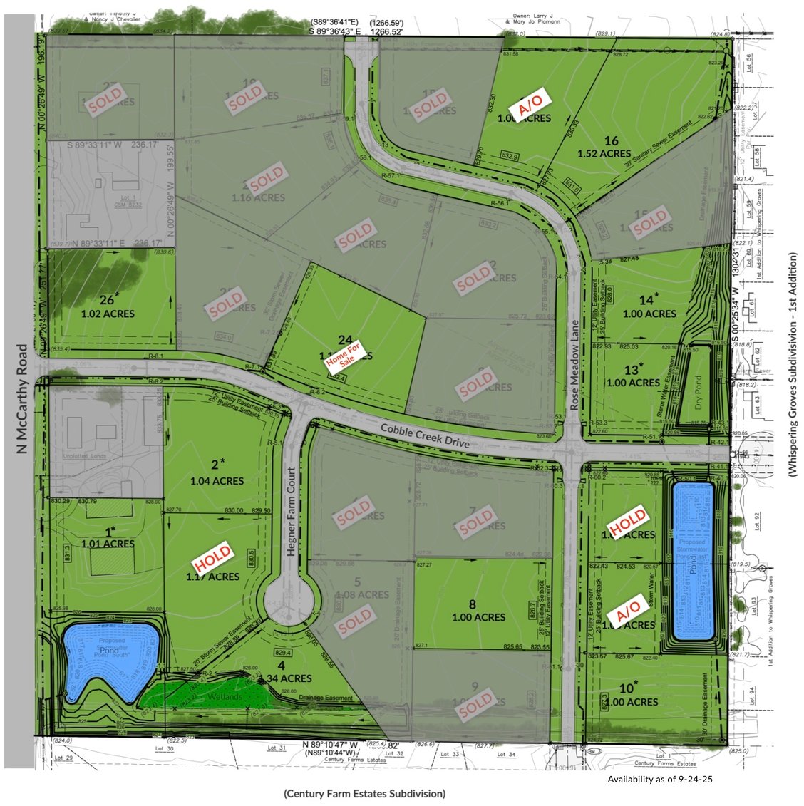
* |
* |
* HOLD |
![]() |
| Lot 5 Hegner Farm Court - SOLD |
| Lot 6 Cobble Creek Drive - SOLD |
| Lot 7 Rose Meadow Lane - SOLD |
| Lot 8 Rose Meadow Lane -$169,900 |
| Lot 9 Rose Meadow Lane - SOLD |
* |
| Lot 11 Rose Meadow Lane - HOME FOR SALE |
* HOLD |
* |
* |
| Lot 15 Rose Meadow Lane - SOLD |
A/O |
| Lot 18 Rose Meadow Lane - SOLD |
| Lot 19 Rose Meadow Lane - SOLD |
| Lot 20 Rose Meadow Lane - SOLD |
| Lot 21 Rose Meadow Lane* - SOLD |
| Lot 22 Rose Meadow Lane* - SOLD |
| Lot 23 Cobble Creek Drive* - SOLD |
| Lot 24 Cobble Creek - HOME A/O |
| Lot 25 Cobble Creek Drive - SOLD |
* |
| Lot 27 McCarthy Road* - SOLD |
The subdivision is located just minutes northwest of the city of Appleton, WI. Auburn Estates is located on the east side of McCarthy Road, just north of Capitol Drive.
The subdivision is adjacent to two existing subdivisions. Rose Meadow Lane extends north from Century Farm Estates and Cobble Creek Drive extends west from Whispering Groves subdivision. One new road, Pebble Creek Court, was also created as a cul de sac street within Auburn Estates.
Auburn Estates Subdivision is within the Hortonville Area School District. School-aged children would attend:
Minimum Square Footage Required:
The front side of each home must have a minimum of 30% masonry.
Outbuildings will be allowed in accordance with the Town of Grand Chute regulations. The exterior of outbuildings must match the home.
All lots are build-to-suit with Cypress Homes, Inc.
Below is the official plat map for Auburn Estates. A full resolution version is available for download using the button below.
The lots in Auburn Estates come fully improved with:
1 Curb & gutter will be run along Cobble Creek Drive and Hegner Farm Court, culverts will be located along McCarthy Road and Rose Meadow Lane
2 Sidewalks will be located along the south side of Cobble Creek Drive only